Hanging bedroom
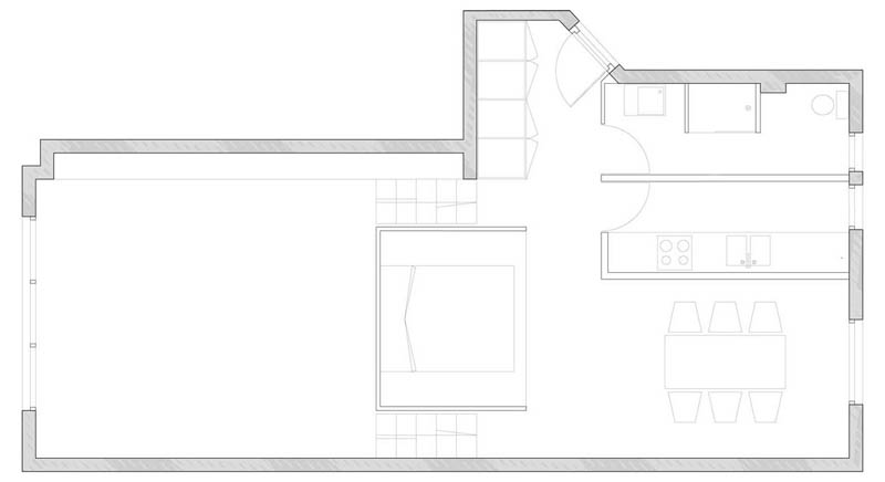
In this unique, open-concept loft space, ECDM Architects were challenged by the owner to create a bedroom in this relatively small 50 square meter (538 sq ft.) apartment. The solution of a hanging or suspended bedroom is both elegant and functional. The living room area now has separation from the rest of the space and the bedroom can serve dual purpose as a sort of ‘bench’ should guests congregate in dining room/kitchen area.
Completed in 2005 and located in Montrouge, France, Chez Valentin is a funky space that’s sure to leave an impression. In the pictures below you may notice the living room being shown with several different layouts, which one do you like best?

